8.6
2LDK
| 物件種別 | 賃料 (共益費) |
敷金 礼金 |
初期費用 総額 |
間取り | 専有面積 | 築年月 | 所在階 |
|---|---|---|---|---|---|---|---|
| マンション |
5.5万円 (-) |
8.2万円 - |
21.4万円 | 1LDK | 40m² | 2003/8 | 6階 |

| 物件種別 | 賃料 (共益費) |
敷金 礼金 |
初期費用 総額 |
間取り | 専有面積 | 築年月 | 所在階 |
|---|---|---|---|---|---|---|---|
| マンション |
5.5万円 - |
8.2万円 - |
21.4万円 | 1LDK | 40m² | 2003/8 | 6階 |
| 月々必要 | 契約時・更新時 | ||
|---|---|---|---|
| 賃料 | 55,000円 | 敷金 | 8.2万円 |
| 共益費 | なし | 礼金 | なし |
| 駐車場 | 5,500円 | 仲介手数料 | 66,000円 |
| システム利用料 | なし | 定額精算 | なし |
| 衛生管理費 | なし | 火災保険料等 | 要18,000円 |
| 保証委託料 | 48,400円 | ||
| 更新料 | なし | ||
| その他 | |||
| 物件種別 | マンション | ||
|---|---|---|---|
| 物件No. | 4100262065-607 | ||
| 物件名/部屋番号 | 松橋マンション 607 | ||
| 所在地 | 宮崎県宮崎市松橋 | ||
| 小学校区 | 小戸小(700m) | 中学校区 | 宮崎西中(1,400m) |
| 構造 | 鉄筋コンクリート造 | 所在階/階数 | 6階/6階建 |
|---|---|---|---|
| 築年月 | 2003年08月(築22年8ヶ月) | 総戸数 | 43戸 |
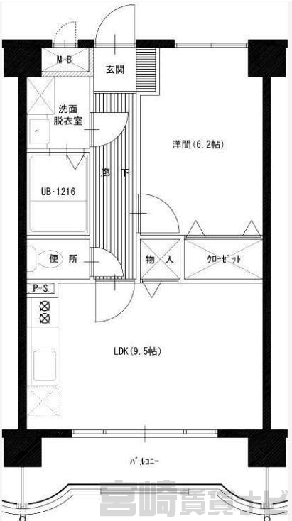
| 間取り | 1LDK | 専有面積 | 40m²(12.10坪) |
| 間取詳細 | 洋6 LDK9.5 | ||
| 主要採光面 | 南東 | ||
| 駐車場 | 有り/1台/別途5,500円(税込) | ||
| 駐車場備考 | 軽専用 | ||
| 設備 | 水道:公営、 ガス:有(プロパンガス・集中)、 排水:公共下水、 2人入居可:可、 給湯:有(ガス)、 こんろ:無(ガス配管あり)、 バス・トイレ別:有(バストイレ別)、 バス:有(専用)、 トイレ:有(専用/水洗)、 シャワー:有、 シャンプードレッサー:有、 独立洗面台:有、 洗濯機置場:屋内、 温水洗浄便座:有、 インターホン:有(ドアホンのみ)、 冷暖房設備:有(エアコン)、 フローリング:有、 エレベーター:有、 バルコニー:有、 収納:有、 ケーブルTV:配線設置済(要個別契約)、 BS:有、 駐輪場:有 | ||
|---|---|---|---|
| 現況 | 空室 | 取引態様 | 仲介 |
| 契約形態 | 通常契約(2年) | 引渡時期 | 即入居可能 |
| 連帯保証人 | 保証会社 | ||
| 住宅保険 | 要 | ||
| 交通 | JR日豊本線宮崎駅から徒歩30分 松橋2丁目バス停まで徒歩4分 |
||
|---|---|---|---|
| 周辺環境 | コンビニ(270m)/スーパー距離(450m)/病院距離(500m) | ||
| セールスポイント | 遮音性・断熱性に優れたRC造マンションです。 | ||
| 備考 | |||
| 情報登録日 | 2013年11月14日 | 前回登録・更新日 | 2026年04月03日 |
| 有効期限 | 2026年04月17日 ※次回更新日は前回更新日より14日以内 | ||
| 取扱店舗 |
大興不動産 南店賃貸営業課
|
|---|