賃貸物件 詳細情報

延岡市三ツ瀬町

ランディック三ツ瀬ビル 402

物件種別 賃料
(共益費)
敷金
礼金
初期費用
総額
間取り 専有面積 築年月 所在階
アパート・マンション 3.9万円
(-)
-
-
10.7万円 3LDK 69m² 1981/11 4階

物件イメージ写真 ( 19枚の写真が登録されています ) ※画像をクリックすると、拡大表示されます

この項目を閉じる

駐車場について

この項目を閉じる
駐車場 有り
駐車台数 1台
駐車料金
備考
※駐車場の空車状況は変更になる場合もございますので、ご了承ください。

物件の地図

この項目を閉じる
※「地図上の対象物件の位置はプログラムで自動表示したもので、
  実際の位置と異なる場合があります。正確な位置はお問い合わせください。

地図に施設を表示

費用について

この項目を閉じる
物件種別 賃料
(共益費)
敷金
礼金
初期費用
総額
間取り 専有面積 築年月 所在階
アパート・マンション 3.9万円
-
-
-
10.7万円 3LDK 69m² 1981/11 4階

費用

月々必要 契約時・更新時
賃料 39,000円 敷金 なし
共益費 なし 礼金 なし
駐車場 なし 仲介手数料 42,900円
システム利用料 なし 定額精算 なし
衛生管理費 なし 火災保険料等 要20,000円
    保証委託料 31,200円
    更新料 なし
その他 鍵交換費用:13,200円
※上記金額は税込表示となっております。

初期費用計算

敷金
礼金
仲介手数料
定額精算
鍵交換費用
火災保険料
家賃保証料
0
0
42,900
0
13,200
20,000
31,200
合計
107,300
※上記は概算の参考金額であり、契約金額を保証するものではございません。
また、別途、前家賃が必要となります。

物件概要

この項目を閉じる
物件種別 アパート・マンション
物件No. 5100001373-402
物件名/部屋番号 ランディック三ツ瀬ビル 402
所在地 宮崎県延岡市三ツ瀬町
小学校区 (743m) 中学校区 (1,648m)
構造 鉄筋コンクリート造 所在階/階数 4階/5階建/地下0階
築年月 1981年11月(築44年5ヶ月) 総戸数 0戸
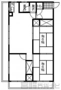
間取り 3LDK 専有面積 69m²(20.87坪)
間取詳細
主要採光面
駐車場 有り/1台/込
駐車場備考
設備 給湯:給湯、 バス・トイレ別:バス・トイレ別、 シャワー:シャワー、 追焚き:追い焚き、 冷暖房設備:冷暖房:エアコン、 フローリング:フローリング、 バルコニー:バルコニー
現況 空室 取引態様 専属専任媒介
契約形態 通常契約 引渡時期
連帯保証人 保証会社
住宅保険
交通 JR日豊本線延岡駅駅から徒歩27分
安賀多町3丁目バス停まで徒歩1分
周辺環境
セールスポイント イオンまで徒歩3分、敷金礼金なし、家賃1ヶ月フリーレントです
備考
情報登録日 2014年02月03日 前回登録・更新日 2026年04月15日
有効期限 2026年04月29日  ※次回更新日は前回更新日より14日以内
取扱店舗
大興不動産 延岡 賃貸営業課
TEL:0982-21-4141
受付時間/9:00~18:30(月曜~金曜) 10:00~18:00(土曜・日曜・祝祭日)  
〒882-0856 宮崎県延岡市出北2丁目14番19号太平ビル1階
店舗情報を見る

お電話でのお問い合わせ

大興不動産 延岡 賃貸営業課
0982-21-4141
〒882-0856
宮崎県延岡市出北2丁目14番19号
太平ビル1階
月曜~金曜/9:00~18:30
土曜・日曜・祝日/10:00~18:00
延岡市三ツ瀬町
ランディック三ツ瀬ビル 402
【物件No.】
5100001373-402
物件No.をお知らせください
この物件を見ている人はこちらの物件も見ています!
アパート
宮崎県延岡市三ツ瀬町
5.5
(1LDK)
宮崎県延岡市三ツ瀬町
お電話でのお問い合わせ
0982-21-4141
ホームページを見たと
お伝えください
延岡市三ツ瀬町
ランディック三ツ瀬ビル
402
【物件No.】
5100001373-402

物件No.をお知らせください
空室状況の確認
例:物件No.【5100001373-402】の物件は空室ですか?
近隣情報の確認
例:近くにスーパー、学校はありますか?
内見の確認
例:実際に物件を見てみたいのですが...
見学日時の予約
例:○月○日に内見できますか?
特集から物件を探す
店舗紹介
0985-27-3332
宮崎県宮崎市南花ケ島町63-2
免許番号
国土交通大臣(02)第009194号
【担当エリア】神宮・江平・吉村・新別府・花ヶ島・住吉・佐土原
宮崎市大工1丁目1120
免許番号
国土交通大臣(02)第009194号
【担当エリア】宮崎市中心部・宮崎駅東・大塚・小松・生目
0985-50-7777
宮崎県宮崎市中村西3丁目1-5
免許番号
国土交通大臣(02)第009194号
【担当エリア】南宮崎・恒久・大坪・花山手・大塚・小松・生目・生目台・本郷・赤江・木花・青島・加納・清武・田野
0982-21-4141
宮崎県延岡市出北2-14-19
免許番号
宮崎県知事(10)第2927号
【担当エリア】延岡市
0982-52-1500
宮崎県日向市北町1丁目89番地
免許番号
宮崎県知事(9)第3159号
【担当エリア】日向市・門川町
宮崎県宮崎市南花ケ島町60番地2
免許番号
国土交通大臣(2)第006097号
【担当エリア】宮崎市