4.7
2K
| 物件種別 | 賃料 (共益費) |
敷金 礼金 |
初期費用 総額 |
間取り | 専有面積 | 築年月 | 所在階 |
|---|---|---|---|---|---|---|---|
| マンション |
6.5万円 (-) |
- 6.5万円 |
20万円 | 1SLDK | 56m² | 1997/12 | 2階 |

| 物件種別 | 賃料 (共益費) |
敷金 礼金 |
初期費用 総額 |
間取り | 専有面積 | 築年月 | 所在階 |
|---|---|---|---|---|---|---|---|
| マンション |
6.5万円 - |
- 6.5万円 |
20万円 | 1SLDK | 56m² | 1997/12 | 2階 |
| 月々必要 | 契約時・更新時 | ||
|---|---|---|---|
| 賃料 | 65,000円 | 敷金 | なし |
| 共益費 | なし | 礼金 | 6.5万円(1ヶ月) |
| 駐車場 | なし | 仲介手数料 | 71,500円 |
| システム利用料 | なし | 定額精算 | なし |
| 衛生管理費 | なし | 火災保険料等 | 要18,000円 |
| 保証委託料 | 32,500円 | ||
| 更新料 | なし | ||
| その他 | 鍵交換費用:13,200円 | ||
| 物件種別 | マンション | ||
|---|---|---|---|
| 物件No. | 4100332001-202 | ||
| 物件名/部屋番号 | ニューサンシャインビル 202 | ||
| 所在地 | 宮崎県宮崎市上野町 | ||
| 小学校区 | 小戸小(850m) | 中学校区 | 宮崎西中(1,400m) |
| 構造 | 鉄筋コンクリート造 | 所在階/階数 | 2階/8階建 |
|---|---|---|---|
| 築年月 | 1997年12月(築28年1ヶ月) | 総戸数 | 戸 |
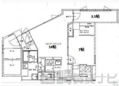
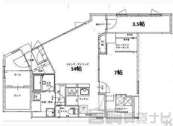
| 間取り | 1SLDK | 専有面積 | 56m²(16.93坪) |
| 間取詳細 | LDK14 洋7 納戸3.5 | ||
| 主要採光面 | 北 | ||
| 駐車場 | 無し// | ||
| 駐車場備考 | |||
| 設備 | 水道:公営、 ガス:有(都市ガス)、 排水:公共下水、 ペット:不可、 2人入居可:可、 楽器相談:不可、 給湯:有(ガス)、 こんろ:有(ガス)、 バス・トイレ別:有(バストイレ別)、 バス:有(専用)、 トイレ:有(専用/水洗)、 シャワー:有、 シャンプードレッサー:有、 独立洗面台:有、 洗濯機置場:屋内、 温水洗浄便座:有、 インターホン:有(TVモニタ付)、 冷暖房設備:有(エアコン)、 フローリング:有、 エレベーター:有、 バルコニー:有、 収納:有、 ブロードバンド:利用料無料、 光ファイバー:有、 駐輪場:有、 デザイナーズ:対応、 ハイグレード:対応 | ||
|---|---|---|---|
| 現況 | 空室 | 取引態様 | 仲介 |
| 契約形態 | 通常契約(2年) | 引渡時期 | 指定時期(2026年2月上旬) |
| 連帯保証人 | 保証会社 | ||
| 住宅保険 | 要 | ||
| 交通 | JR日豊本線宮崎駅/橘通り2丁目バス停から乗車8分、停歩5分 橘通り2丁目バス停まで徒歩5分 |
||
|---|---|---|---|
| 周辺環境 | |||
| セールスポイント | インターネット無料の物件となっております! | ||
| 備考 | |||
| コンフォート | TCM | ||
| 情報登録日 | 2016年10月28日 | 前回登録・更新日 | 2026年01月23日 |
| 有効期限 | 2026年02月06日 ※次回更新日は前回更新日より14日以内 | ||
| 取扱店舗 |
大興不動産 南店賃貸営業課
|
|---|